
Arquitecto
José Luis Romero Guerra
Promueve
Terroga y asociados 2023 S.L.
Información y venta
📧 [email protected]
🟢 WhatsApp
☎️ 614 39 42 29
La promoción consta de cuatro viviendas en la avenida principal de Espartinas (Av. Alcaldesa María Regla Jiménez, 33).
Altas calidades, cocina amueblada y con electrodomésticos, baño equipado, aerotermia, domótica y trastero desde 168 000 € (+ IVA).
Las viviendas se encuentran en plena fase de construcción y se entregarán en mayo de 2026.
¡Reserva ya la tuya!
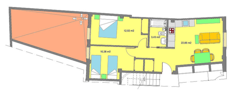
Dos dormitorios
Salón-comedor con cocina amueblada
Baño equipado
Trastero de 6,99 m²
Patio de 23,64 m²
Superficie construida: 54,63 m²
VIVIENDA VENDIDA

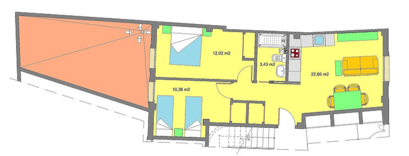
Dos dormitorios
Salón-comedor con cocina amueblada y electrodomésticos
Baño equipado
Trastero de 6,99 m²
Patio de 22,90 m²
Superficie construida: 61,25 m²
173 250 € (+ IVA)
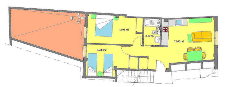
Dos dormitorios
Salón-comedor con cocina amueblada y electrodomésticos
Baño equipado
Trastero de 6,99 m²
Superficie construida: 60,00 m²
168 000 € (+ IVA)
Dos dormitorios
Salón-comedor con cocina amueblada y electrodomésticos
Baño equipado
Trastero de 6,99 m²
Superficie construida: 67,42 m²
178 500 € (+ IVA)
Llámanos al 614 39 42 29, escríbenos por WhatsApp al mismo número, o mándanos un correo a [email protected] con cualquier solicitud de información.
ℹ️ ¿Qué incluye la cocina?
Además de los muebles tal como se ven en el plano 3D de cada cocina, va equipada con fregadero de un seno, grifería, placa vitrocerámica, campana extractora, horno, lavadora, lavavajillas y frigorífico.
ℹ️ ¿Qué es la aerotermia?
La aerotermia es un sistema eficiente que extrae calor del aire exterior mediante una bomba de calor para generar calefacción, refrigeración y agua caliente sanitaria (ACS), incluso a bajas temperaturas. Consume hasta un 80 % menos de energía al usar el 75-80 % de calor «gratuito» del ambiente y solo un 20-25 % de electricidad, reduce emisiones de CO₂ y unifica los tres servicios en un solo equipo más silencioso y duradero.
ℹ️ ¿Qué funciones incluye la domótica?
Las viviendas cuentan con un sistema de domótica que permite controlar a distancia, desde el móvil, la puerta de entrada, la iluminación interior y el aire acondicionado, además de incorporar detector de incendio con aviso inmediato en caso de humo.
ℹ️ ¿Cómo se paga?
En las especificaciones de cada vivienda puedes encontrar un enlace llamado Plazos de pago. Ahí puedes ver de forma detallada los plazos y las cantidades que has de satisfacer en cada uno de los pagos.Aceptamos cierta flexibilidad en fechas y cantidades, de modo que puedas disponer de una mayor o menor cantidad de hipoteca o cualquier otra casuística según tus preferencias. Simplemente, coméntanos tu caso.
ℹ️ ¿Cómo se reserva?
Para reservar una vivienda es indispensable realizar el primero de los pagos establecidos en los plazos de pago. Hasta que no se ha efectuado el pago de la reserva, no podemos retirar la vivienda de la venta a otros interesados. No podemos hacer excepciones a esto.
ℹ️ ¿Puedo pagar mediante hipoteca?
Tal y como se indica en los plazos de pago, el último de ellos es el de mayor cuantía, y es probable que quieras pagarlo mediante hipoteca. Por supuesto, puedes hacerlo de esta forma. Sin embargo, ten en cuenta que la negociación de la hipoteca con tu banco es un trámite que corre totalmente de tu cuenta.
Terroga y asociados 2023 S.L.
NIF: B56148562
C/ Castilla, 21, 3, 2.°, G
41010, Sevilla